Pow. użytkowa: 6.239m2
Kubatura: 26.350m3
Data: 2016
Lokalizacja: Wodzisław Śląski
Inwestor: publiczny
Współpraca: Pracownia Projektowa PROEKO
Projekt termomodernizacji miał za zadanie poprawę komfortu użytkowania budynku, komfortu cieplnego budynku i ograniczenia zużycia energii.
Prace termomodernizacyjne obejmowały kilka etapów: remont kotłowni, docieplenie stropodachów wszystkich segmentów obiektu, remont naświetli, remont elewacji oraz projekt nowej kolorystyki budynku szkoły.
Projekt elewacji powstał w konsultacji z zamawiającym.



Pow. działki: 1.670m2
Data: 2017
Lokalizacja: Katowice
Inwestor: prywatny
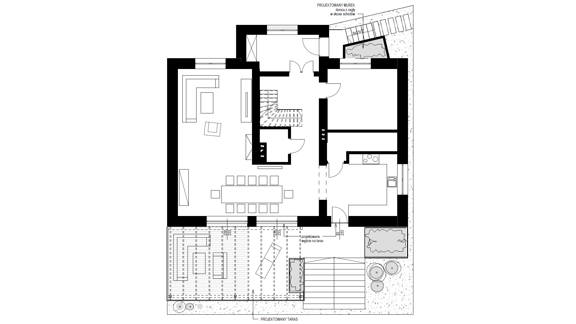
Projekt obejmował zaprojektowanie wykończenia elewacji budynku po wykonanej termomodernizacji wraz z projektem tarasu wypoczynkowego przylegającego oraz projekt garażu z tarasem naziemnym wyposażonym w mini kuchnię oraz zagospodarowanie terenu w obrębie budynku i garażu – teren utwardzony. Pozostałą części działki stanowi istniejąca zieleń.
Życzeniem inwestora było wykorzystanie cegły ceramicznej z odzysku po rozbiórce fragmentu budynku gospodarczego znajdującego się na działce. W projekcie zaproponowano wykonanie z cegły płytek ceramicznych i ułożenie ich na cokole oraz na części wejściowej do budynku. Zaprojektowano dodatkowe drzwi tarasowe w celu doświetlenie jadalni oraz dodatkowe wyjście bezpośrednio z kuchni. Ponieważ styl ogrodu ma pozostać bardzo naturalny, to tarasy zaproponowano klasyczne z drewnianymi elementami, zaprojektowano pergole z możliwością przysłonięcia w postaci materiałowej markizy i zasłon. Duży taras pozwolił na rozmieszczenie donic z zielenią wykonanych z drewna na wymiar, donice wkomponowano w barierkę okalającą taras.
Budynek gospodarczy zaadoptowano na garaż z wydzieloną łazienką. Przy garażu zaprojektowano drugi taras jadalniany z grillem i mini kuchnią.



Pow. użytkowa: 362m2
Data: 2017
Lokalizacja: Gliwice
Inwestor: prywatny
Zadanie projektowe dotyczyło zaprojektowania budynku jednorodzinnego i garażu w istniejącej ścisłej zabudowie śródmiejskiej. Ze względu na gabaryty działki oba obiekty zlokalizowano w granicach działki.
Budynek mieszkalny zaprojektowano w linii zabudowy (na granicy z chodnikiem miejskim) uzupełniając istniejącą pierzeję miejskiej. Budynek przylega jednym bokiem do istniejącego trzy kondygnacyjnego budynku usługowego, co wymusiło zachowanie kształtu elewacji i dachu po obrysie sąsiada. Ze względu na istniejący wjazd działkę garaż ulokowano w przeciwnym narożniku działki, również w granicy.
Od ulicy w części parteru zaprojektowano powierzchnię pod najem, a od strony ogrodu część mieszkalną. Na parterze znajduje się część ogólnodostępna: salon z tarasem, jadalnia, kuchnia i toaleta oraz pom. techniczne, na piętrze zaś zlokalizowano 4 sypialnie i dwie łazienki, pralnię, sypialnia właścicieli z własna garderobą i łazienką.
Trzy sypialnie posiadają wyjście na taras. Poddasze pozostaje niezagospodarowane (pozostawione do aranżacji w przyszłości). Na działce na poziomie terenu również znajdują się dwa tarasy jeden przylegający do salonu – wypoczynkowy i drugi przy garażu, osłonięty – gościnny, w dalszej części działki znajduje się ogród.





